Company Logo
My Counselor HomeFinder Get New Listings Emailed Daily! SIGN UP LOGIN

106 Main Avenue W, Frazee, MN 56544

34 Total Photos [Click to View All]

Listed By

Agency Name: The Real Estate Company of Detroit Lakes
Agency Phone: 218-844-8008

Shown By

Agency Title: Counselor Realty
Agency Phone: 612-405-8404

IDX logo

Property Description

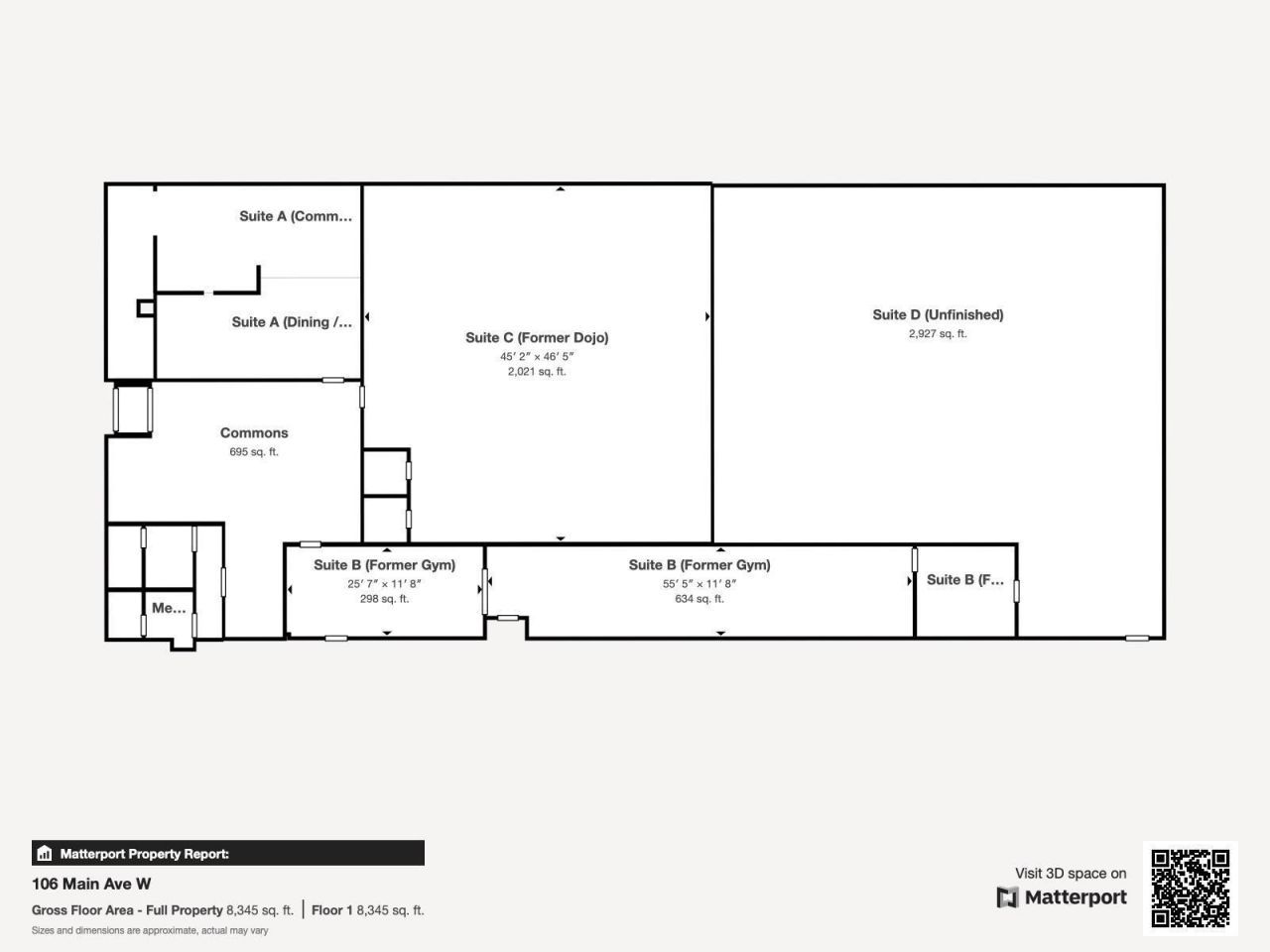
Commercial space in Frazee, MN! Former Bowling alley (Can be converted back to bowling alley) and pizzeria. Space has been been converted into 4 suites. Suite A: Former pizzeria / shake shop with Commercial kitchen; Suite B: Former Gym / Fitness; Suite C: Former Dojo with changing rooms; Suite D: unfinished space to get creative with (Indoor storage / Laundromat / Warehouse / etc. Commons and Men's / Women's baths. Over 8,000 SF of commercial space built in 1996 in downtown Frazee, MN! Energy efficient building. Newer natural gas / forced air furnace.

106 Main Avenue W | MLS# 6761858

This commercial property located at 106 Main Avenue W, Frazee, MN 56544 is currently listed for sale with an asking price of $429,000. Main Avenue W is located within the Frazee-Vergas school district. Search Frazee real estate on www.counselorrealestate.com today.

Property Features

Property Type: Commercial - Office
Cooling: Central Air
Fuel Type: Natural Gas
Heating: Forced Air
Lot Size: 0.25 Acres
Roof Type: Metal, Pitched
Stories: 1.0
Taxes: $2,124
Year Built: 1996

Feature Descriptions

Current Use: Professional/Office, Commercial, Food Service, Professional Service, Recreational, Restaurant, Warehouse
Days on Site: 220
Exterior: Block, Other, Concrete, Frame, Steel Siding
Foundation Size: 8280
Handicap Accessible: No Stairs External, No Stairs Internal
Lot Dimensions: 140x77
Parcel#: 500398000
Parking: On-Street Parking Only, Other
Road Frontage: City Street, Curbs, Paved Streets, Sidewalks, Street Lights
Sale Includes: Building, Land
Sewer: City Sewer/Connected
Shared Rooms: Other
Units: 4
Utilities: Electric Common, Heating Common, Hot Water Common
Water: City Water/Connected

Local Schools

School District: Frazee-Vergas

Near By

Demographics

Login to My Homefinder

Pixel