Company Logo
My Counselor HomeFinder Get New Listings Emailed Daily! SIGN UP LOGIN

1024 Golfview Drive, Preston, MN 55965

2 Total Photos [Click to View All]

Listed By

Agency Name: Re/Max Results
Agency Phone: 507-288-1111

Shown By

Agency Title: Counselor Realty
Agency Phone: 612-405-8404

IDX logo

Property Description

Beautiful to-be-built model by Pollock Construction, a collaboration with local builder Jonathan Wood Construction. This is the perfect opportunity to customize your dream home! The builder has the ability to make interior layout changes to this plan, as well as options in things like a backyard patio or deck. Experience rolling topography and stunning golf course views! Choose from five generously sized lots, or purchase them all?with an additional 5-acre lot available right on the course. Most lots are wooded, while others feature picturesque meadows. Enjoy added perks, including the seller offering a flexible 3-year timeline to build your dream home. Pay 50% of the lot price in the first year, with the option to pay 25% in both the second and third years?interest-free. These lots are conveniently located near the state's newest Veterans Home in Preston, a community recognized as both telecommuter-friendly and Veteran-friendly. Property highlights include a paved street, protective covenants, and new construction housing incentives of $10,000+ offered through the City of Preston Economic Development Authority. Each lot requires a $5,000 down payment, and covenants, city housing incentives, and waived road assessment fees are available online. See supplements for details.

1024 Golfview Drive | MLS# 7000207

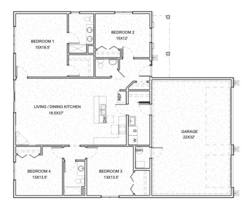
This single family home located at 1024 Golfview Drive, Preston, MN 55965 is currently listed for sale with an asking price of $484,325. This property was built in 2025 and has 4 bedrooms and 2 full and 1 partial baths with 1927 sq. ft. Golfview Drive is located in the Golfview Doherty First Add subdivision within the Fillmore Central school district. Search Golfview Doherty First Add real estate on www.counselorrealestate.com today.

Property Features

Property Type: Residential - Single Family
Basement: None
Cooling: Central Air
Fireplaces: 1
Fuel Type: Natural Gas
Garage: 3 car attached
Heating: Forced Air
Lot Size: 0.35 Acres
Roof Type: Architectural Shingle
Stories: 1.0
Taxes: $260
Year Built: 2025

Feature Descriptions

Accessibility: Doors 36+, Grab Bars In Bathroom, Hallways 42+, Door Lever Handles, No Stairs External, No Stairs Internal
Additional Living Info.: All Living Facilities on One Level, Main Floor Primary, Main Floor Bedroom
Appliances: Air-To-Air Exchanger, Dishwasher, Dryer, Range, Refrigerator, Stainless Steel Appliances
Bath: Full Primary, Private Primary, Main Floor 1/2 Bath, Main Floor Full Bath
Bathrooms Full: 2
Bathrooms Half: 1
Days on Site: 126
Dining: Kitchen/Dining Room
Down Payment Resource: Yes
Exterior: Concrete, Frame
Fireplace: Electric, Living Room
Foundation Size: 1927
Lot: Irregular Lot
Lot Dimensions: Irregular
Parcel#: 170717000
Parking: Attached Garage
Sewer: City Sewer - In Street
Water: City Water - In Street

Local Schools

School District: Fillmore Central

Estimate Your Payment

Estimated Payment

$ 2,740.71 per month $2,577.78 Principal & Interest $21.67 Property Tax $141.26 Homeowner's Insurance

Change Payment Information

%
years/fixed
yearly
yearly (est.)
(Payments are an estimate and may vary by lender)

Near By

Demographics

Login to My Homefinder

Pixel